
Cinemotion Museum
A museum for the moving image, sculpted around light, shadow and frame.
At a glance
- Location
- Ankara, Türkiye
- Year
- 2024
- Typology
- Cultural · Museum
- Status
- Competition Proposal
- Area
- 6,400 m²
- Client
- Open Cultural Competition
Concept
Architecture choreographed like a film — in frames, cuts and dissolves — where visitors are both audience and protagonist.
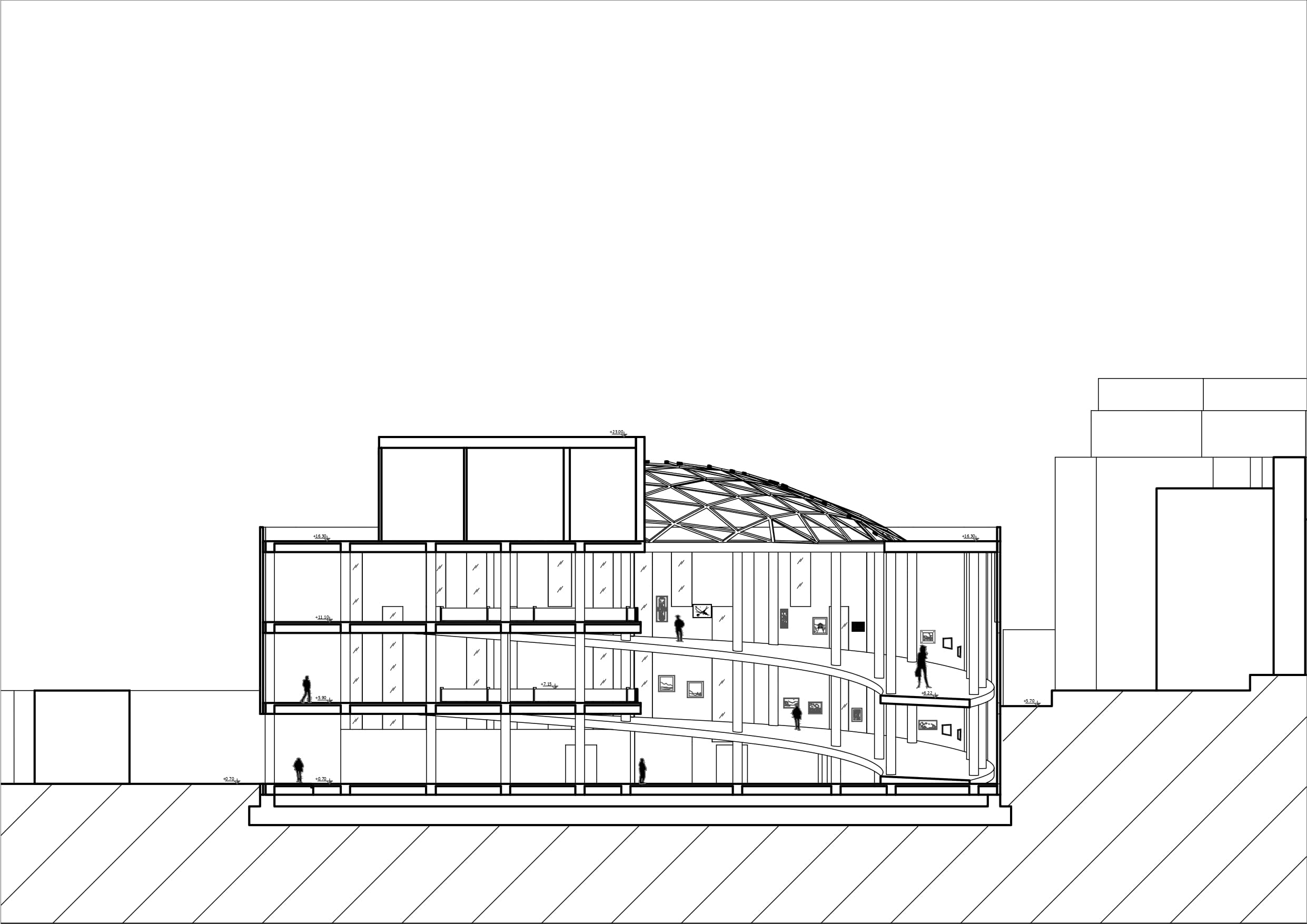
Cinemotion proposes the museum as a sequence of shots. Galleries, projection rooms and archives are arranged along a continuous, gently inclined promenade — a dramaturgy of darkness, light and reveal.
The façade alternates between solid mass and cinematic slits, controlling daylight with precision and transforming the exterior into a kinetic play of shadow through the day.
At the heart of the plan, a suspended cinema pod floats above a public lobby, carrying audiences between the urban ground and the curated darkness of the archives above.


Cinemotion Museum — gallery promenade in warm light

Cinemotion Museum — facade detail and shadow play
Materials
- Board-formed concrete
- Bronzed steel fins
- Smoked oak
- Micro-perforated acoustic panels
Program
- /01Permanent & temporary galleries
- /02180-seat main cinema
- /03Film archive and restoration lab
- /04Rooftop open-air cinema

Cinemotion Museum — main auditorium interior

Cinemotion Museum — archive hall and vertical circulation

Cinemotion Museum — night view with illuminated slits

Cinemotion Museum — rooftop cinema under open sky

Cinemotion Museum — contextual urban perspective

